

















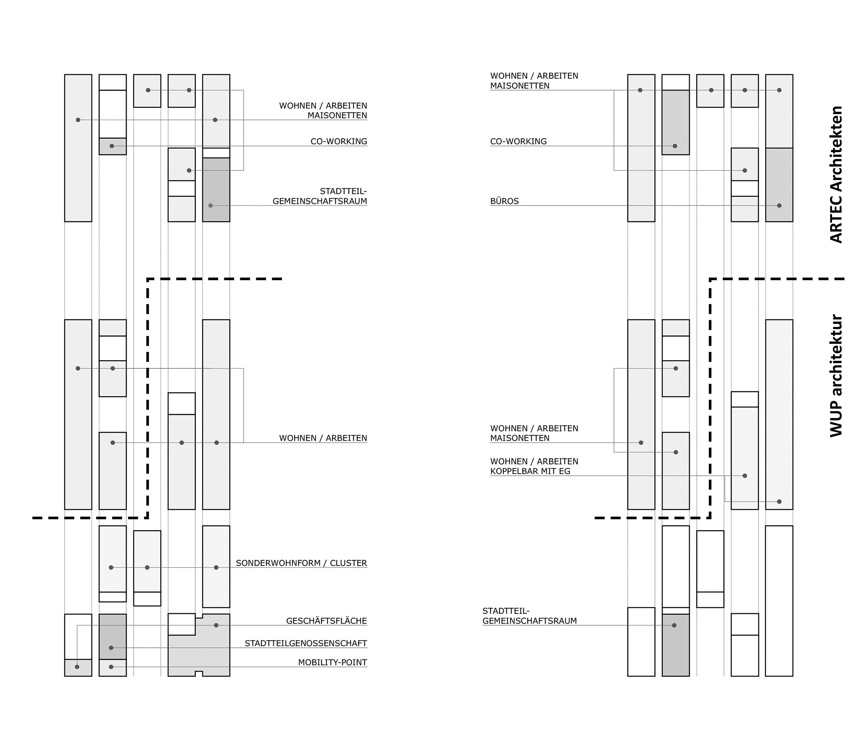
Der städtebauliche Entwurf auf der Basis von fünf längslaufenden Schichten für die Baufelder mit dazwischen angeordneten Erschließungszonen oder privaten Freiräumen interpretiert die Vorgaben der Flächenwidmung mit einer Abfolge von Turmvolumina und niedrigeren Baukörpern. Diese Verteilung von Höhendifferenzierung und Grünflächen erfolgt streng rational in Hinblick auf eine optimale Positionierung der Hochbauten. Der Anteil der Freiräume (Loggien und Balkone, Laubengänge und Dachterrassen) ist über die gesamte Gebäudestruktur gleichmäßig und durchgehend verteilt.
Der Übergang zwischen Innen und Außen entlang der transparenten Längsfassaden mit hervorragender Belichtung wird fließend. Die einzelnen Häuser verfügen über großzügige, teils begrünte Dachterrassen mit Gemeinschaftsräumen oder Waschküchen. Der Sockelbereich der Gebäude beinhaltet die öffentlichen Funktionen sowie Wohnformen auf zwei Ebenen mit einer Geschosshöhe von 3 m im Erdgeschoss (wo eine einfache Gewerbenutzung ermöglicht werden soll). Jede Wohn- und Arbeitseinheit hat Zugang zu einer für den sozialen Wohnungsbau außergewöhnlich großen privaten Freifläche.
Die Gebäudestruktur basiert auf einer Bauweise von Fertigteilbetonstützen- und Ortbetondecken als offene Plattformbauweise mit nur wenigen tragenden Wänden in erster Linie im Bereich der Erschließungskerne und ist Grundlage einer dauerhaft hybrid (um)nutzbaren Gebäudestruktur. Eine Anzahl der Einheiten weist eine lichte Raumhöhe von mehr als 2,5 m auf. Der Bau kann unterschiedliche Nutzungen aufnehmen, bis hin zu maximal großen, offenen Raumstrukturen innerhalb der thermischen Hülle.
Im Erdgeschoss befindet sich auf Stiege 6 einer der neun bauplatzübergreifenden Gemeinschaftsräume. Zusätzlich gibt es zwei betreute Wohngemeinschaften, Geschäftsflächen und co-working-spaces die sowohl fest als auch flexibel angemietet werden können. Ein mobility-point befindet sich ebenfalls auf dem Bauplatz. Die Energieversorgung mit Fernwärme wird durch ein 20 kWp Photovoltaikanlage ergänzt.
Bauträgerwettbewerb
Fixstarter
Bauherren:
Österreichisches Siedlungswerk
Schwarzatal
Gesamtprojekt und Generalplanung:
SMAQ GmbH (ARTEC Architekten, wup wimmerundpartner ZT GmbH, raum & kommunikation GmbH)
Team ARTEC Architekten:
Bettina Götz und Richard Manahl
Projektleitung: Johannes Giselbrecht
Jun Wook Song, Josef Schröck, Héctor Farré Cortada, Patrick Pregesbauer, Michael Hafner, Michael Murauer, Gerda Polig, Björn Wilfinger, Josef Nežmahen
Sedef Kücükandac, Matthias Numberger, Dragana Gavric, Ceren Görgün, Emanuel Spurny, Christian Kellner, Dominik Tschabrun
Modellbau: Esther Eichhorn, Matthias Numberger, Emanuel Spurny
in Bau
Landschaftsplaner: Carla Lo, Wien
Tragwerksplanung: Werkraum Ingenieure, Wien
Haustechnik: dp - Gebäudetechnik GmbH, Wien
Bauphysik: Ingenierbüro Wilhelm Hofbauer, Wien
Brandschutz: Kunz - Die innovativen Brandschutzplaner, Mödling
Planungsbeginn: 2018
Baubeginn: 2023
Fertigstellung: 2025
Grundstücksfläche: 14.600 m2 (gesamtes Grundstück)
Bruttogeschossfläche oberirdisch: 16,870 m2
Nutzfläche: 12.273 m2 WNF, 334 m2 Sondernutzungen
Rauminhalt: 50.504 m3